西安汇德艺术培训学校室内装修及消防二次改造项目

发布者:都好生意-找房_装修_消防验收手续一站式服务平台

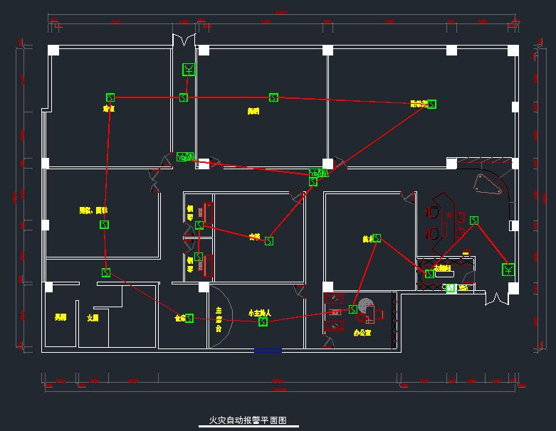
西安汇德艺术培训学校项目位于西安未央区御井路7007号利君未来‎城‎改造面积645平米,计划用艺术培训。

我司主要负责的装修施工及消防改造项目:

二次消防:装修设计、消防设计、消防设计备案;装修工程、消防施工、检测、验收许可证、消防安全检查合格证等一条龙服务!

1.喷淋系统改造

2.火灾报警系统改造

3.应急照明及疏散指示系统改造

4.消火栓系统改造

5.室内装修施工

我司负责的相关服务项目:

1.室内装修设计

2.消防设计出图及备案申报

3.消防竣工验收手续等服务。



消防工程验收消防工程验收消防工程验收消防工程验收消防工程验收


推荐商品

中国银行经营贷:最高10...

中国银行经营贷:最高1000万,利率低至2.65%

详情

中信银行·商户赋能贷—随...

中信银行·商户赋能贷—随借随还/最高500万/全线上操作

详情

兴业银行普惠金融—兴惠贷...

兴业银行普惠金融—兴惠贷中小企业信用贷款:最高1000万额度

详情