西安研途考研培训中心室内装修工程
西安研途考研培训中心室内装修工程

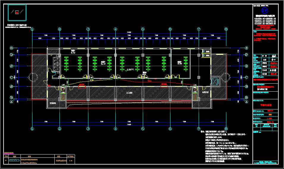
西安研途考研培训中心,位于西安市碑林区咸宁西路28号思源智谷座A座7层,面积为574.44m20㎡,属于需要办理消防验收备案的项目,办理流程如下:
1、根据装修平面图进行消防设计





2、图纸经过第三方审图机构审查,并出具审查报告及合格书



3、本项目施工投资额小于100万元,属于无需办理施工许可证的项目,取得审图报告后,即可按照图纸进行施工,消防施工结束,由第三方检测机构现场检测,出具消防设施检测报告


4、网上申报消防验收备案,提供必要的验收资料:

5、资料审核通过,无需现场验收,直接取得消防验收备案合格手续







