​西安夜色酒吧室内消防二次改造项目

发布者:都好生意-找房_装修_消防验收手续一站式服务平台

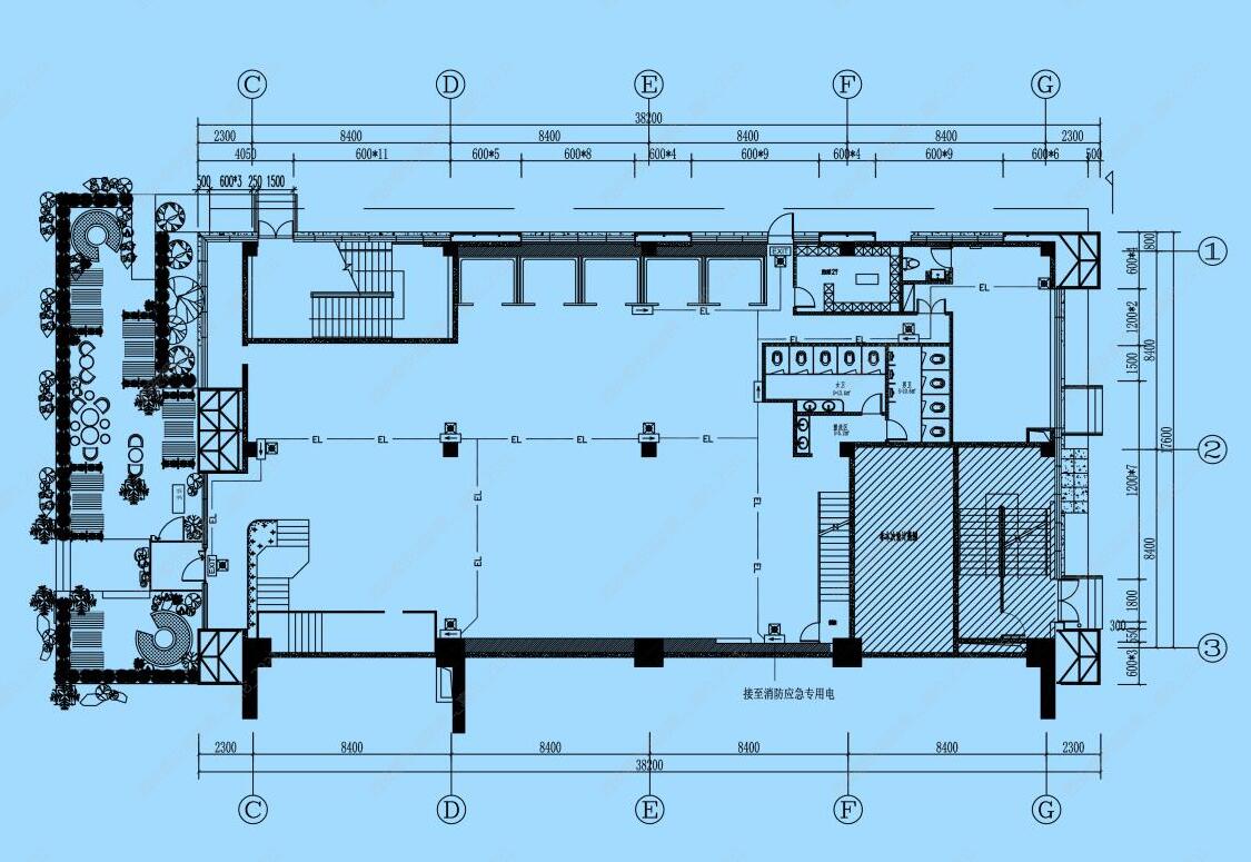
  西安夜色酒吧位于西安高新区科技六路华鼎国际10103号铺,计划用于餐饮娱乐,改造面积470平米。

  我司主要负责的消防改造施工项目:

  二次消防:装修设计、消防设计、消防设计备案;装修工程、消防施工、检测、验收许可证、消防安全检查合格证等一条龙服务!

  1.喷淋系统改造

  2.火灾报警系统改造

  3.应急照明及疏散指示系统改造

  4.消火栓系统改造

  5.通风防排烟系统改造

  我司负责的相关服务项目:

  1.消防设计出图及备案申报

  2.消防竣工验收手续等服务。


推荐商品

中国银行经营贷:最高10...

中国银行经营贷:最高1000万,利率低至2.65%

详情

中信银行·商户赋能贷—随...

中信银行·商户赋能贷—随借随还/最高500万/全线上操作

详情

兴业银行普惠金融—兴惠贷...

兴业银行普惠金融—兴惠贷中小企业信用贷款:最高1000万额度

详情