西安焦糖网吧凤城八路店室内消防二次改造项目

发布者:都好生意-找房_装修_消防验收手续一站式服务平台

  西安焦糖网吧凤城八路店位于西安经开区凤城八路天朗御湖小区第六幢1单元10131号商铺二层,计划用于网吧,改造面积430平米。

  我司主要负责的消防改造施工项目:

  二次消防:装修设计、消防设计、消防设计备案;装修工程、消防施工、检测、验收许可证、消防安全检查合格证等一条龙服务!

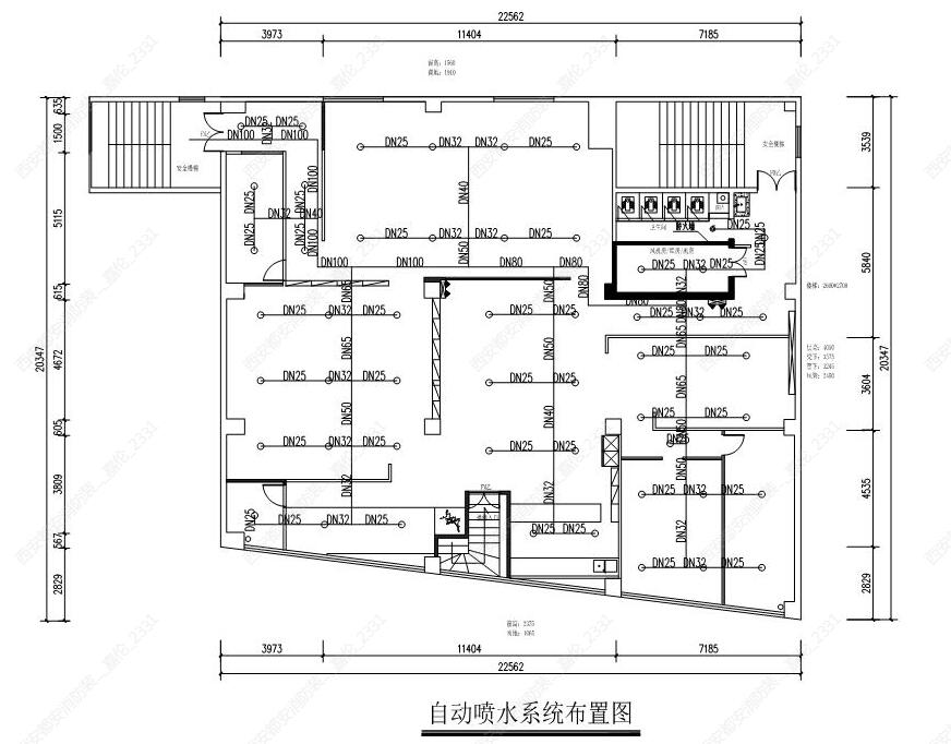
  1.喷淋系统改造

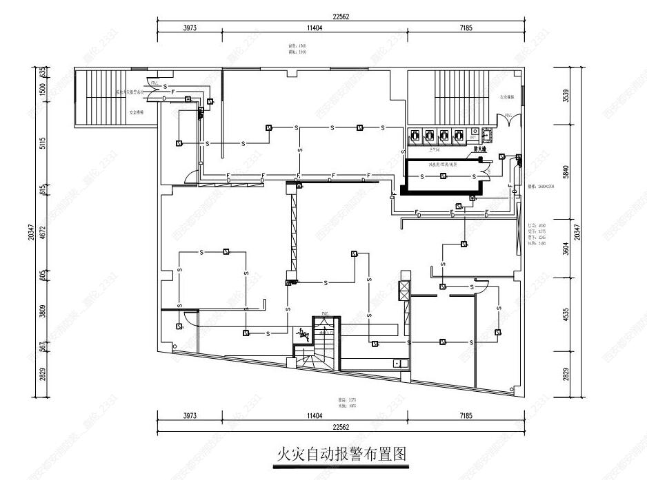
  2.火灾报警系统改造

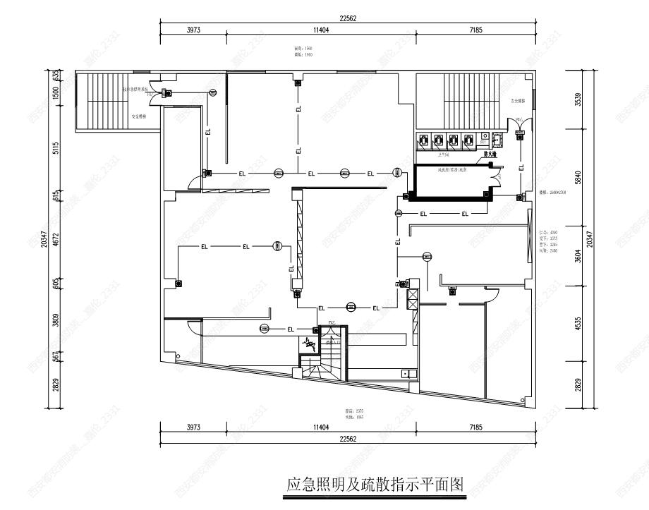
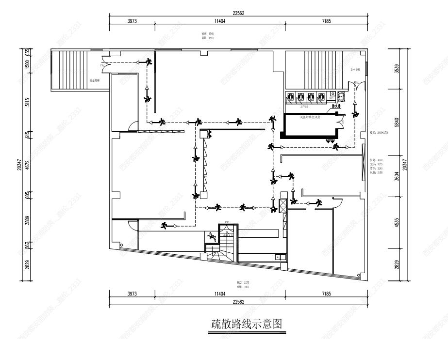
  3.应急照明及疏散指示系统改造

  4.消火栓系统改造

  5.通风防排烟系统改造

  我司负责的相关服务项目:

  1.消防设计出图及备案申报

  2.消防竣工验收手续等服务。



推荐商品

中国银行经营贷:最高10...

中国银行经营贷:最高1000万,利率低至2.65%

详情

中信银行·商户赋能贷—随...

中信银行·商户赋能贷—随借随还/最高500万/全线上操作

详情

兴业银行普惠金融—兴惠贷...

兴业银行普惠金融—兴惠贷中小企业信用贷款:最高1000万额度

详情