西安沃朵母婴护理服务有限公司室内消防二次装修改造项目
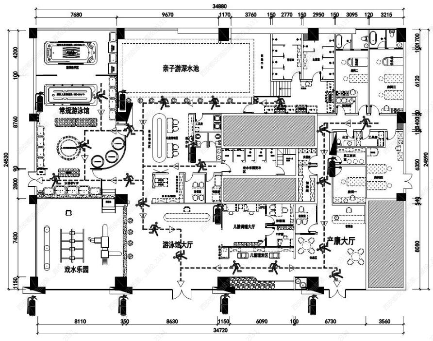
西安沃朵母婴护理服务有限公司(维尼宝贝)位于西安雁塔区朱雀大街南段12号城市立方F3-7/8号商铺,计划用于母婴护理,改造面积930平米。
我司主要负责的消防改造施工项目:
二次消防:装修设计、消防设计、消防设计备案;装修工程、消防施工、检测、验收许可证、消防安全检查合格证等一条龙服务!
1.喷淋系统改造
2.火灾报警系统改造
3.应急照明及疏散指示系统改造
4.消火栓系统改造
5.通风防排烟系统改造
我司负责的相关服务项目:
1.消防设计出图及备案申报
2.消防竣工验收手续等服务。












