立讯未来中心(未央))

400㎡~2300㎡
建筑面积
产业园区招商
房产类型
毛坯
装修情况
空置中
经营状态
- 租赁方式
整租
- 一消凭证
暂无数据
- 押付方式
- 起租时间
一年起
- 所在楼层
免费咨询
专业客服实时在线高校为您服务
400 6518 119
- 基本信息房产新旧
新
首层层高 - 房产结构
框架
可办环评是
- 楼板承重
暂无数据
房产地址陕西省西安市未央区草滩街道陕西航天泵阀新材料产业园东南210米
- 房源特色机器人园区未央立讯
- 房源介绍
项目主要建设工业厂房28幢,并配套技术研发中心、产品设计中心、产品展示中心、生产交付维护中心、销售结算运营中心、综合服务中心等设施。
- 周边客流
- 适合行业
该基地的建设将带动机器人产业生态圈集群化发展,增强西安机器人产业链创新聚集效应,为全省机器人产业链创新夯实基础。


项目介绍
该基地位于西安市未央区,总投资额为6.75亿元,占地75.38亩,总建筑面积8万平方米。项目主要建设工业厂房28幢,并配套技术研发中心、产品设计中心、产品展示中心、生产交付维护中心、销售结算运营中心、综合服务中心等设施。该基地的建设将带动机器人产业生态圈集群化发展,增强西安机器人产业链创新聚集效应,为全省机器人产业链创新夯实基础。

预计年产分拣机器人整机将达到2万台,并为跨境电商、医药、美妆等多个行业的相关企业提供50余组精心打造的整体解决方案。这些产品以其小巧的空间占用、高度柔性化的生产方式、以及出色的稳定性和效率,赢得了市场的广泛认可。

项目总平面布置图


厂房分布情况

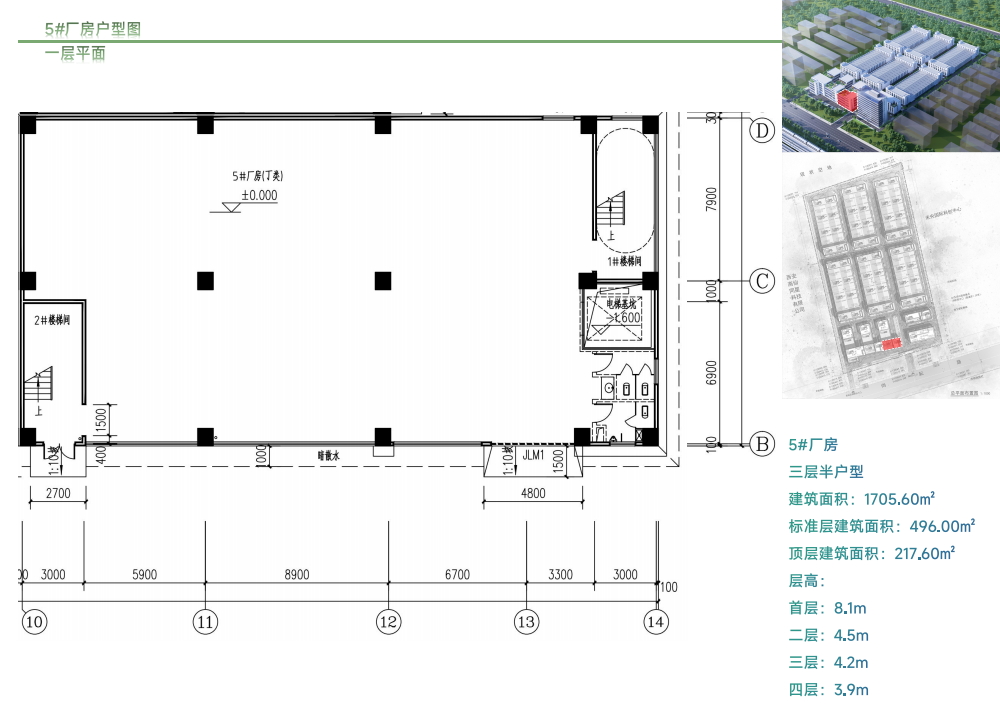
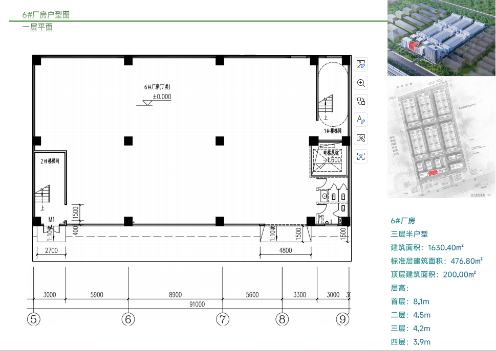
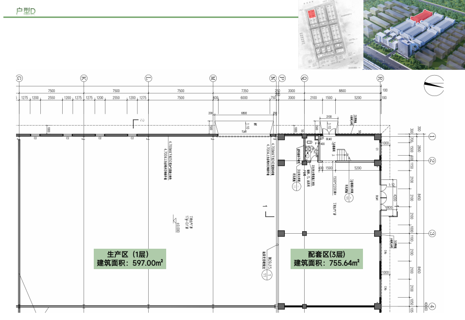
5-10#厂房户型图

5#厂房平面图

6#厂房平面图

7#厂房平面图

8~10#厂房平面图

11~13#厂房平面图



15~16#厂房平面图


17#厂房平面图


项目位置

立讯机器人基地:引领西安机器人产业未来
- 产业园区招商¥0.0
- 产业园区招商¥0.0
- 产业园区招商¥0.0
- 产业园区招商¥60.0
- 产业园区招商¥300.0
- 产业园区招商¥90.0
- 产业园区招商¥504.0
- 产业园区招商¥648.0







