港务区 汇芯•均和云谷未来信息产业基地 独栋厂房出售

1200㎡-4000㎡
建筑面积
厂房库房招商
房产类型
毛坯
装修情况
空置中
经营状态
- 一消凭证
未上传
- 所在楼层
1-3层
- 首付
- 定金
免费咨询
专业客服实时在线高校为您服务
400 6518 119
- 基本信息首层层高
7.8m
房产结构框架
- 可办环评
是
楼板承重首层承重 20KN/㎡,二层承重5KN/㎡,三层承重 3.5KN/㎡
- 房产新旧
新
房产地址陕西省西安市国际港务区秦汉大道以南,欧洲道东西两侧
- 交易属性挂牌时间房屋用途
工业厂房
- 上次交易房屋年限
50
- 产权所属
独立产权
抵押信息
- 房源特色港务区汇芯•均和云谷未来信息产业基地独栋厂房
- 房源介绍
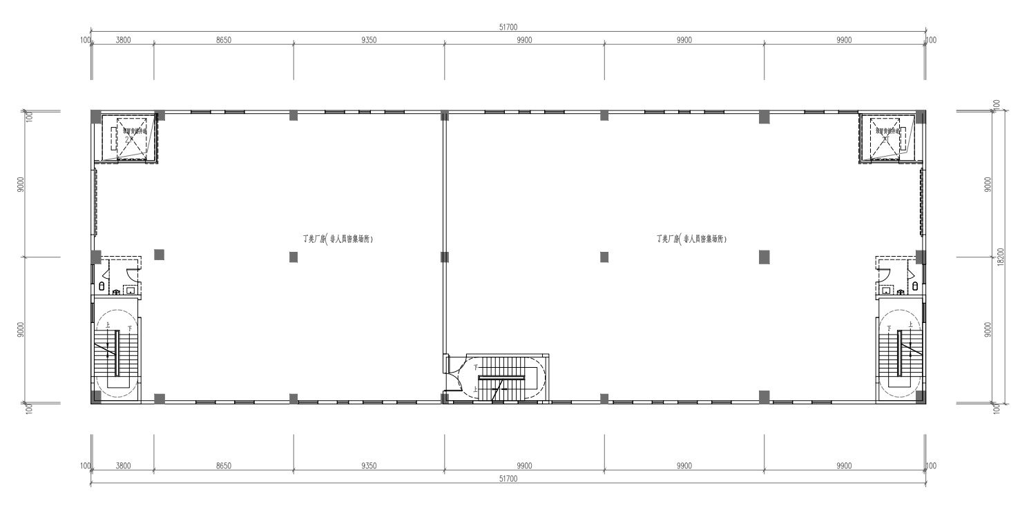
汇芯均和云谷未来信息产业基地位于陕西省西安市国际港务区秦汉大道以南,欧洲道东西两侧,是西安市重点引进项目,占地面积157.67余亩,总建筑面积约15.9万平米,容积率1.52。规划三层框架结构结构厂房31栋,五层框架结构厂房11栋,1栋产业配套楼,可满足办公、生产及研发等多种需求。涵盖研发中心、生产厂房、测试中心、创新孵化中心、创新产品展示交流中心、实训基地及园区行政中心等功能区域。
- 周边客流
综合保税区、跨境电子商务产业园、西部新材料交易中心
- 适合行业
主导产业;5G新一代信息技术行业、数字生态、新材料新能源、智能制造、人工智能;
项目概况
项目位于大西安国家中心城市建设的东部新中心国际港务区,总占地157.67余亩,总建筑面积约15.8万平方米,容积率1.52,建筑密度42.55%,绿地面积近5600余平。
内部规划三层框架结构结构厂房31栋,五层框架结构厂房11栋,1栋产业配套楼,产品涵盖600-6500㎡分层、独栋,可满足办公、生产及研发等多种需求,重点引入5G行业、新一代信息技术、数字生态、新材料新能源、智能制造、人工智能等相关产业,旨在打造区域产业平台标杆。
项目园区建成后将由均和云谷产服平台统一运营管理,将在供应链业务平台、金融链服务、产业政策研究、产业人才培养、企业服务等方面为企业提供全方位支持,切实保证园区优质持续发展。

开发主体
深圳市汇芯通信技术有限公司
深圳市汇芯通信技术有限公司由深圳市福田区政府、清华大学、南方科技大学联合中国电信、小米、OPPO、传音、日海、京信、国人、宇通、科信、金信诺、深南电路、盈趣、麦捷、亿联等28家产业链上下游龙头企业和上市公司,共同出资组建,注册资本2亿元人民币,专注于新一代通信领域前沿技术和共性关键技术的研发供给、转移扩散及商用化。2021年11月,汇芯通信获得工信部批准,组建国家5G中高频器件创新中心。
产品设计
3层独栋厂房;面积1200-1600- 4000平米;
层高;独栋首层7.8米,标准层4.2米,顶层3.9米;
承重;首层2T,二层以上500KG;


招商产业
主导产业;5G新一代信息技术行业、数字生态、新材料新能源、智能制造、人工智能;
地图



项目产权
国有工业用地,50年独立产权
产品情况
➢ 3F框架结构厂房,首层层高7.8m,承重 20KN/㎡,二层层高4.2m,承重5KN/㎡,三层层高3.9m,承重 3.5KN/㎡。

产业运营


- 厂房库房招商¥3900.0
- 厂房库房招商¥35.0
- 厂房库房招商¥3300.0
- 厂房库房招商¥4800.0
- 厂房库房招商¥4100.0
- 厂房库房招商¥0.0
- 厂房库房招商¥0.0
- 厂房库房招商¥35.0





