空天领航科技园 独栋厂房

800㎡-3400㎡
建筑面积
厂房库房招商
房产类型
毛坯
装修情况
空置中
经营状态
- 一消凭证
未上传
- 所在楼层
1-2层,1-3层
- 首付
面议
- 定金
面议
免费咨询
专业客服实时在线高校为您服务
400 6518 119
- 基本信息首层层高
独栋2层,首层9m,独栋3层,首层7.9m
房产结构独栋2层钢构,独栋3层框架
- 可办环评
是
楼板承重 - 房产新旧
新
房产地址渭城区信平大街
- 交易属性挂牌时间房屋用途
工业用地
- 上次交易房屋年限
50
- 产权所属
独立产权,产权分割,一户一证;
抵押信息
- 房源特色空天领航科技园独栋厂房空港新城
- 房源介绍
空天领航科技园;空港新城核心位置,双国企开发实力保证,位置优越,配套齐全,产品设计新颖。
- 周边客流
商业:王府井奥特莱斯、客都购物广场,西蒙商场。
住宅:富力环球贸易港(公寓),西咸空港阳光里,空港花园小区 - 适合行业
航空航天、无人机军工行业、生物医药及医疗器械、电子信息、新材料、高端制造、战略性新兴产业等

⭕●⭕●⭕空天领航科技园⭕●⭕●⭕
空港新城核心位置,双国企开发实力保证,位置优越,配套齐全,产品设计新颖。
☆☆☆☆☆☆☆☆☆☆☆☆☆☆☆☆☆☆☆☆☆☆☆☆☆☆☆☆☆☆☆☆☆☆☆☆☆☆☆☆☆☆☆☆☆☆☆☆☆☆☆☆☆☆☆☆☆☆☆
【项目概况】:
项目总占地约59亩;总建筑面积约4.3万㎡,总投资11亿元。

【土地性质】:
国有工业用地,全新50年独立产权,产权分割,一户一证;
【产品类型】:
独栋钢构2层、面积800-3000㎡ 层高首层9米;二层5-6米
独栋框架3层;面积1600㎡-3400㎡ 层高首层7.9米;二层4.2米;三层3.9米

【产业定位】:航空航天、无人机军工行业、生物医药及医疗器械、电子信息、新材料、高端制造、战略性新兴产业等。
【智慧园区】:将产业集聚发展与办公空间有机结合,融入了移动社交、配套服务与增值服务,实现了园区建设与产业的互动发
展。
【产品介绍】:项目整体以院落式组团空间布局,融入绿色建筑理念,围合的空间提供给企业共享交流的平台。

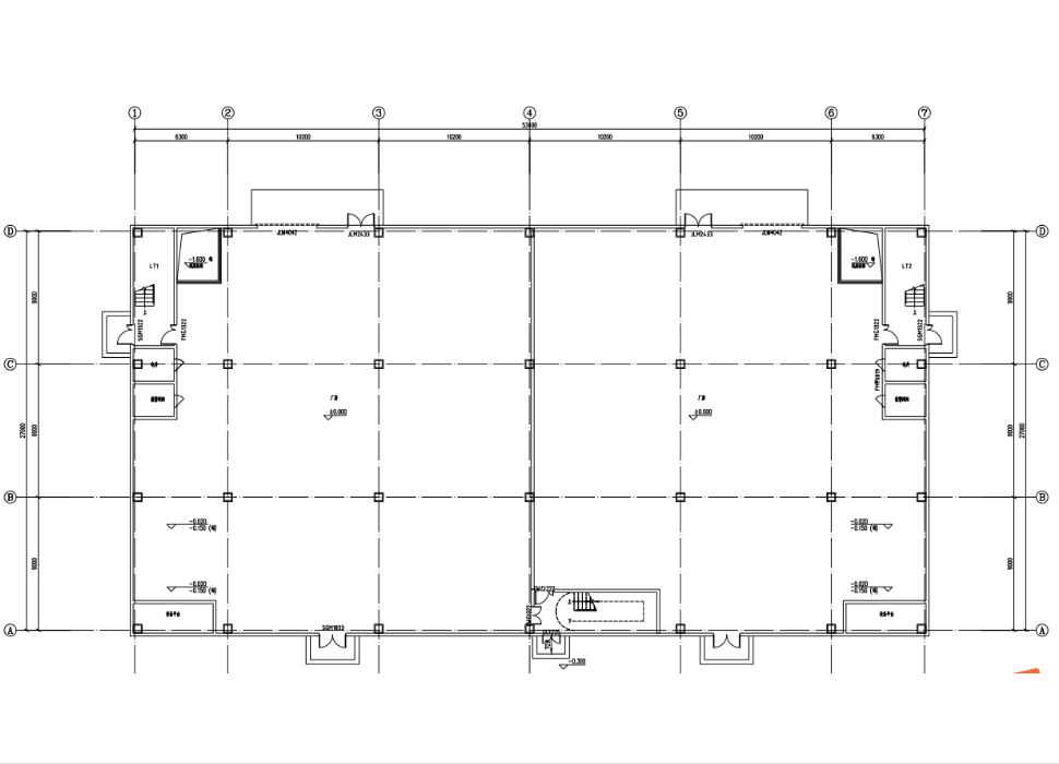
【内部平面图】:

【项目价值点】:
3分钟上高速,5分钟机场
双国企开发实力保证
2024年全新50年独立产权
产品 2层产品专享一企一栋
首层9米层高,灵动使用空间
9米 10米超宽柱距,布局宽阔
【项目优势】:
项目将依托空港新城临空产业、政策等优势,为入驻企业提供全面的科创服务、供应链服务、科技金融等服务,
打造成为以高端制造、科创研发、国际合作、展览展示、配套服务等功能为一体的高科技、绿色化、总部型园
区,助力西咸新区产业集群集聚发展,打造全国领先的临空智造产业新高地、产业新城;

【周边配套】:
商业:王府井奥特莱斯、客都购物广场,西蒙商场。
医疗:空港新城北社医院,秦都区第二人民医院,咸阳市第二人民医院,咸阳市中心医院,咸阳彩虹医院。
住宅:富力环球贸易港,西咸空港阳光里,空港花园小区,绿地国宝21城,西安国际美术城,阳光幸福城
教育:小天才幼儿园,家宝幼儿园,渭城区北杜中心小学,北杜中学
【立体交通】:
西安北 | 紧邻机场 | 高速环绕 | 铁、路、空三维立体交通网
距福银高速约2km
距机场高速约3km
距银百高速约5km
距空港管委会约3km
距咸阳国际机场约3km
距西安北客站约20km
距西安主城区约25km

- 厂房库房招商¥3900.0
- 厂房库房招商¥35.0
- 厂房库房招商¥3300.0
- 厂房库房招商¥4800.0
- 厂房库房招商¥4100.0
- 厂房库房招商¥0.0
- 厂房库房招商¥0.0
- 厂房库房招商¥35.0


