未央区 西安远望谷物联网产业园 厂房 出租

945㎡
建筑面积
厂房库房招商
房产类型
毛坯
装修情况
空置中
经营状态
- 租赁方式
整租
- 一消凭证
暂无数据
- 押付方式
押1付12
- 起租时间
一年起
- 所在楼层
1-6层
免费咨询
专业客服实时在线高校为您服务
400 6518 119
- 基本信息房产新旧
新
首层层高8m
- 房产结构
框架
可办环评是
- 楼板承重
400kg/㎡
房产地址西安经济技术开发区尚稷路以南、草滩九路东西两侧
- 房源特色未央区西安远望谷物联网产业园厂房
- 房源介绍
西安远望谷物联网产业园项目总投资8亿,位于西安经济技术开发区尚稷路以南、草滩九路东西两侧。占地约59亩,规划用地面积 39329.43㎡,总建筑面积 7.7万余平米 ,规划建设四栋6层标准厂房,九栋4层研发厂房,两栋12层配套综合楼。
- 周边客流
周边2km(直线距离)内共有18个公交站:西安交大城市学院,草滩九路鸿业一路口等。
- 适合行业
物联网、科技创新、人工智能、高端智造(非重工业)等
●●●●●●●●●●●●●●●●●●●●●●●●●●●●●●●●●●●●●●●●●●●●●●●●●●●●●●●●●●●●●●●●●●●●●●●●●●●
西安远望谷物联网产业园项目总投资8亿,位于西安经济技术开发区尚稷路以南、草滩九路东西两侧。占地约59亩,规划用地面积 39329.43㎡,总建筑面积 7.7万余平米 ,规划建设四栋6层标准厂房,九栋4层研发厂房,两栋12层配套综合楼。

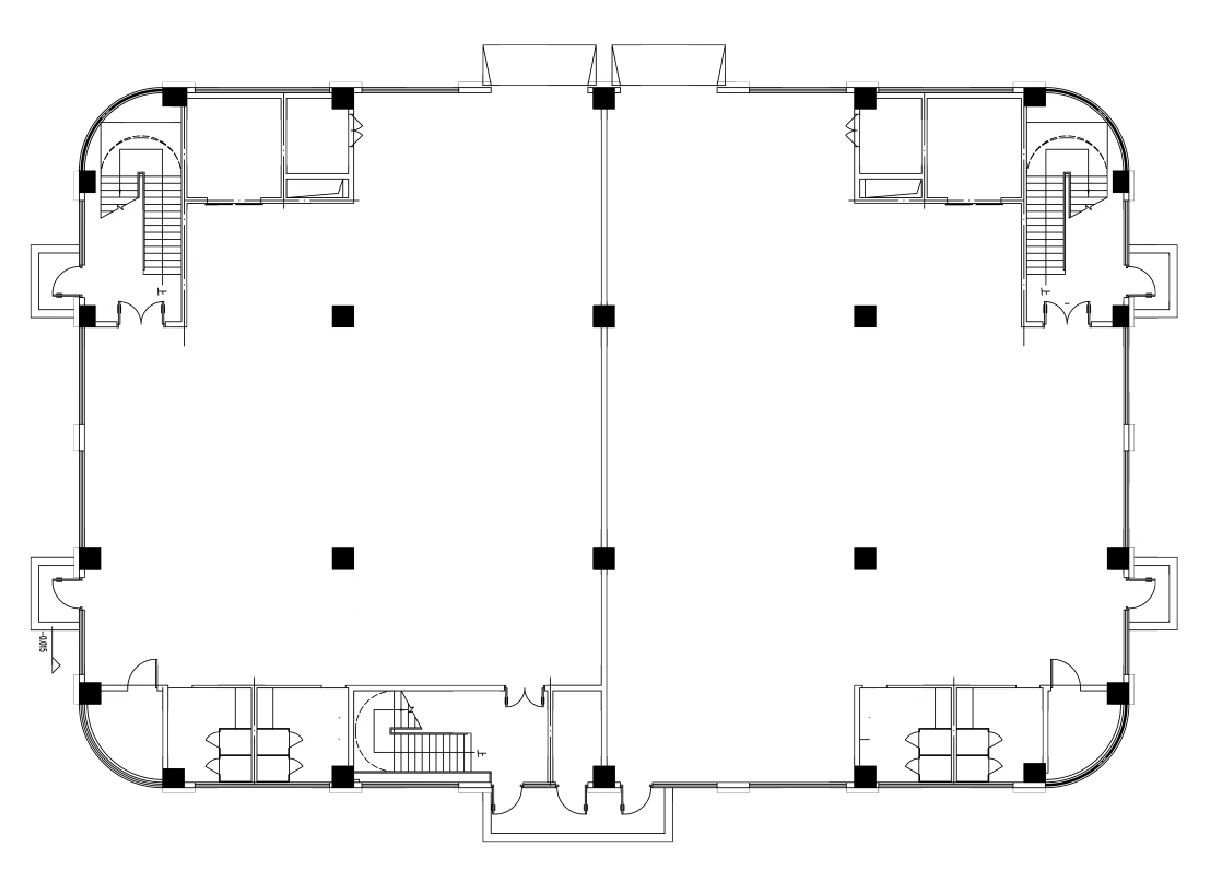
B1/B2栋 厂房图纸:

整层建筑面积:945㎡(中间隔墙可拆,面积以实测为准)
半层建筑面积:464㎡/485.5㎡
独立大货梯入户,轿厢尺寸:1.6宽*2.6米深*2.3米高
层数:共计6层
首层层高:8m
楼上层高:4.7m
楼上承重:400kg/㎡
租金参考:27元/㎡/月
租金递增:1元/㎡/年
物业费:2.7元/平/月(含楼内电梯管理费、垃圾费)
租金支付方式:押一付十二
电费:1.15元/kwh
水费:6.3元/m³
园区实景

园区配套

【交通】238路、727路、901路、265路等交通,265路公交起点站。5分钟可达绕城高速、15分钟可达高铁北站、20分钟可达市政府、30分钟可达西安咸阳国际机场;

- 厂房库房招商¥3900.0
- 厂房库房招商¥35.0
- 厂房库房招商¥3300.0
- 厂房库房招商¥4800.0
- 厂房库房招商¥4100.0
- 厂房库房招商¥0.0
- 厂房库房招商¥0.0
- 厂房库房招商¥35.0





