沣东新城 空天动力创新产业园 研发办公 出租

1050
建筑面积
写字楼办公招商
房产类型
毛坯
装修情况
空置中
经营状态
- 租赁方式
整租
- 一消凭证
暂无数据
- 押付方式
押二付三
- 起租时间
一年起
- 所在楼层
1-5层
免费咨询
专业客服实时在线高校为您服务
400 6518 119
- 基本信息房产新旧
新
首层层高5.5m
- 房产结构
框架
可办环评否
- 楼板承重
200kg/㎡
房产地址陕西省西安市西咸新区沣东新城天章大道以西、丰产路以南
- 房源特色科研办公沣东
- 房源介绍
空天动力创新产业园项目位于沣东新城信息产业园板块,园区聚焦航空航天装备制造、卫星装备制造、固体火箭发动机及精密零部件制造、高性能集成电路等产业领域。
- 周边客流
西咸新区沣东新城“一轴两带五板块”中重要的产业承载区
- 适合行业
主要面向高端装备制造、新材料、新能源等先进制造主导产业领域,大力招引行业领军企业与上下游配套企业,致力形成产业发展集群。
【空天动力创新产业园】
沣东制造,智造沣东,新质生产力强引擎!
⭕●⭕●⭕●⭕●⭕●⭕●⭕●⭕●⭕●⭕●⭕●⭕●⭕●⭕●⭕●⭕●⭕●⭕●⭕●⭕
西咸新区沣东新城“一轴两带五板块”中重要的产业承载区
标准化工业厂房,可单层、可整栋
区位优势明显,交通便捷
配套文化展厅、屋顶花园、员工餐厅等功能区域
同时引入智慧化、网络化管理平台
是西咸新区秦创原优质科创载体

●●●●●●●●●●●●●●●●●●●●●●●●●●●●●●●●●●●●●●●●●●●●●●●●●●●●●●●●●●●●●●
【项目简介】
总占地面积:约30亩
总投资:2.6亿元
规划总建筑面积:3.6万平
容积率:1.48
建设内容:1栋研发办公楼,3栋工业厂房
规划车位:134个。
载体层高:4.5-7.2m
承重:1-2T/㎡
柱距:8.1m
客货梯:各6部
总供电容量:5700KVA
●●●●●●●●●●●●●●●●●●●●●●●●●●●●●●●●●●●●●●●●●●●●●●●●●●●●●●●●●●●●●●
【主导业态】
主要面向高端装备制造、新材料、新能源等先进制造主导产业领域,大力招引行业领军企业与上下游配套企业,致力形成产业发展集群。
●●●●●●●●●●●●●●●●●●●●●●●●●●●●●●●●●●●●●●●●●●●●●●●●●●●●●●●●●●●●●●
【园区优势】
1.人货分流交通系统,安全高效

◐ 车行流线:结合周边道路及场地布局,将货运入口布置于场地南北两侧,场地内形成一条货运环线;场地北侧设置办公车出入口。
◐ 人行流线:主要人行主出入口结合主路天章大道设置,在场地南侧设置人行次入口。场地内部结合二层架空连廊布置主要人行流线。
◐ 装卸平台:一层卸货平台结合外围货运流线布置,负责大型货物装卸;内部为小型货物运输流线。停车布置:办公楼北侧设置少量地上停车。地下车库出入口结合场地北侧车行出入口布置。

◐ 通过二层架空连廊的引入,对厂区内部的人行流线进行了梳理,避免了人行流线与一层货运流线的交叉,同时架空连廊和内庭院的结合,丰富了产业园区的空间体验。
2.满足入园企业及人员多方面需求

◐ 时尚简约的挑空入室大厅,富有科技感的展厅,便于企业使用声光电等多功能智能沉浸式进行企业成果展示及产品销售宣传的多媒体空间,提升园区品质。
◐ 园区配套有员工餐厅、商务包间,可满足员工日常用餐和商务接待需求,更有运动健身、满足企业员工举办活动的场所,切实满足入驻企业多方面需求。
◐ 匠心独运的办公空间布局,退台设计的户外露台,可上人屋顶花园,营造更好的生产办公环境。
●●●●●●●●●●●●●●●●●●●●●●●●●●●●●●●●●●●●●●●●●●●●●●●●●●●●●●●●●●●●●●
【项目详情】
✔✔✔研发办公楼✔✔✔
◐ 时尚简约的挑空入室大厅,富有科技感的展厅,便于企业使用声光电等多功能智能沉浸式进行企业成果展示及产品销售宣传的多媒体空间,提升园区品质。
◐ 园区配套有员工餐厅、商务包间,可满足员工日常用餐和商务接待需求,更有运动健身、满足企业员工举办活动的场所,切实满足入驻企业多方面需求。
◐ 匠心独运的办公空间布局,退台设计的户外露台,可上人屋顶花园,营造更好的生产办公环境。
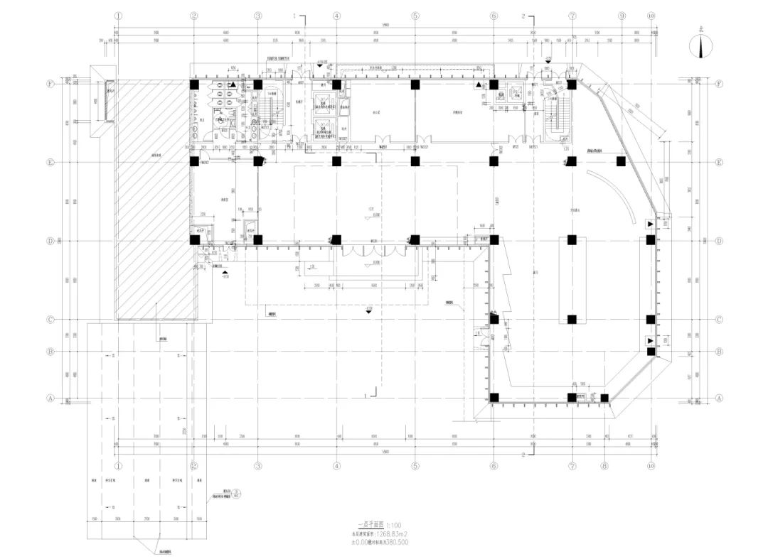
办公楼建设参数:
总面积:5254.63㎡
1F层高:5.5m
层数:5层
柱距:8.1m
总高:24.85m
标准层高:4.5m
承重:200kg/㎡
2部客梯
单层平面图:

- 写字楼办公招商¥0.0
- 写字楼办公招商¥35.0
- 写字楼办公招商¥0.0
- 写字楼办公招商¥36.0
- 写字楼办公招商¥7000.0
- 写字楼办公招商¥107.0
- 写字楼办公招商¥38.0
- 写字楼办公招商¥35.0



