- 规格参数
- 产品介绍
- 商品评价
- 售后服务
- 常见问题
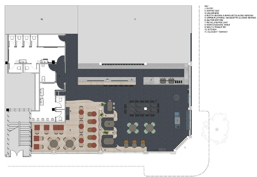
其设计背后的灵感是和谐地将原始和天然的材料与精致的细节和复杂感相结合,设计师们创造了一个温馨的场所,使得白天和晚上都能让人感受到宾至如归的感觉。


通过使用对比材料,纹理和形式,设计要求混合环境既能反映混凝土,钢铁和玻璃的城市特色,又能体现周围繁茂的自然栖息地特征。没有什么比作为整个空间中心的长条形的木质吧台更能体现自然与人造之间的平衡张力。就餐区的定制家具和楼梯,其有机的形式也反映了城市以外的山脉的地形。传统的装饰性天花板配有典雅的木质镶板,裸露的砖墙和混凝土横梁。现代化的金属桌子和淡蓝色的柜子创造了另一层对比。所以,在这个看似设计简洁大方的空间里,自然和人造的这一主题是无处不在的,即便是空间内的细小之处,也能够看出设计团队的别出心裁得将设计与主题契合。






在自然和人造之间的平衡张力比在整个空间长度的长条形柜台的设计中更加明显。 另一方面,原位浇注的细长混凝土块作为咖啡柜台,其建筑角度及各种几何形状,板状图案的异形混凝土墙和水平屋顶平面表明了建筑设计行业的有机风格。
咖啡柜台的立体感被另一侧的吧台反射,虽然通过使用喷砂的实心松木使其在视觉上显得更加更柔和,但其水平纹理上仍反映着混凝土的板图案,实心松木既是装饰,也是以柔克刚的典型使用方式。 喷砂松木也被用于窗户装饰,与外露的混凝土柱相结合,与酒吧的混合美学相呼应。






